︎
KOMPIS ARCHITECTES
bureau
KOMPIS ARCHITECTES
info
029_MER
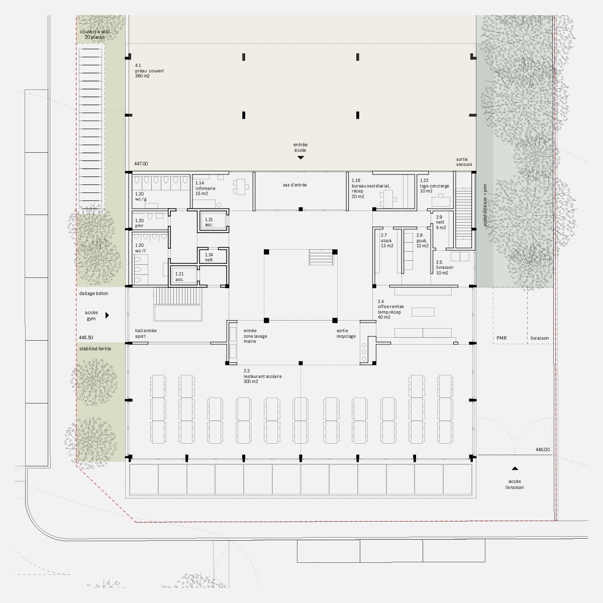
Concours pour un groupe scolaire,
Mervelet
2023